Nathalie Grangier Négociatrice
Télécharger la fiche
Exclusivité Nouveauté

Maison 3 pièce(s) 2 chambre(s) 80 m²

Saint-Chef (38890)
212 000 € Référence NG6881

A propos de ce bien

Sans plus attendre, venez découvrir cette charmante maison de ville d’environ 80, idéalement située à 20 minutes de Bourgoin-Jallieu et 15 minutes de Morestel.

Vous bénéficierez d’une proximité immédiate de l’ensemble des commodités, facilitant le quotidien.

La maison dispose, d’un extérieur privatif ainsi que d’une agréable terrasse, idéale pour profiter de moments de détente en toute tranquillité lors des beaux jours.

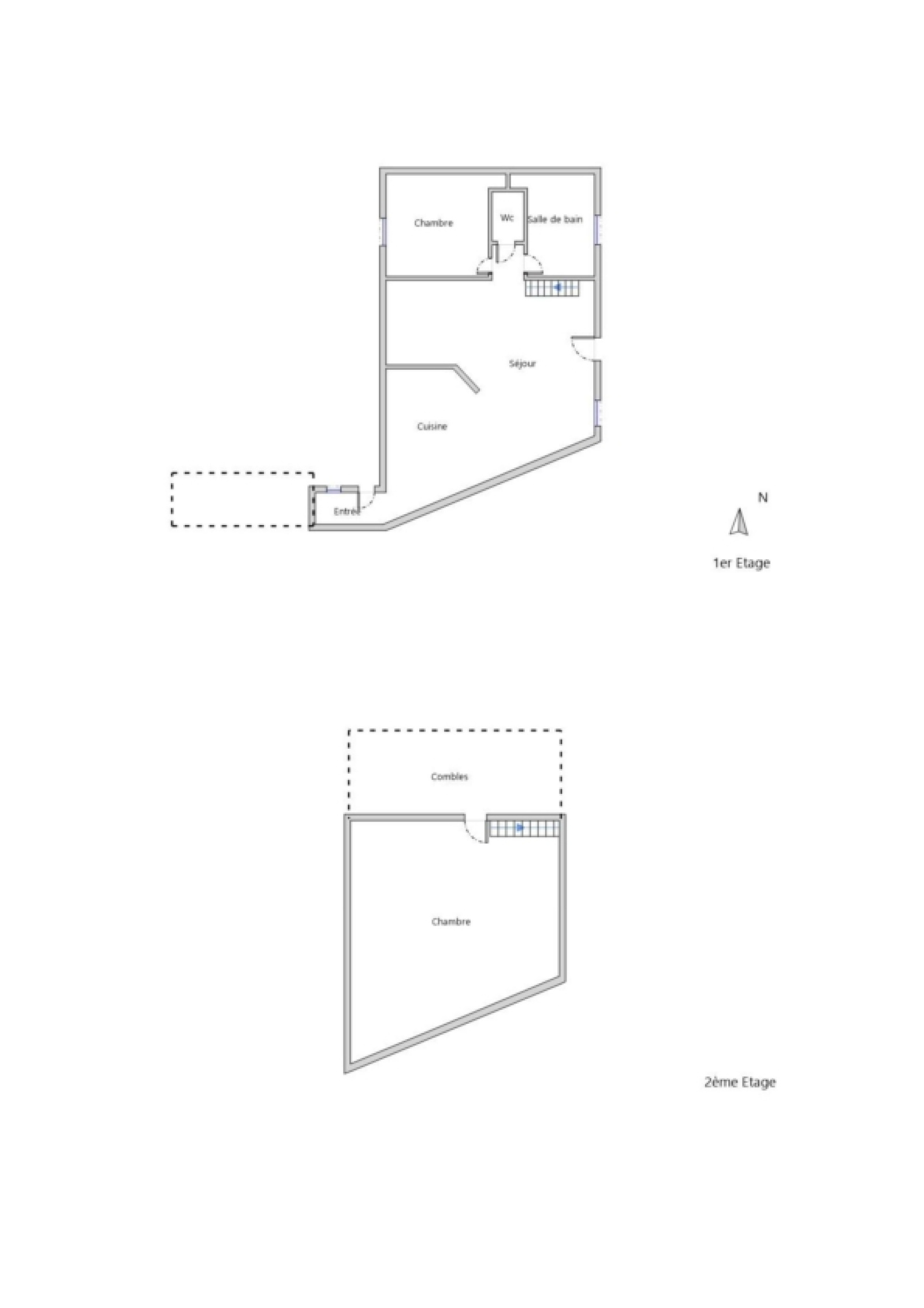
Au premier étage,vous découvrirez une entrée avec son placard pour deposer vos effets personnel, donnat sur une pièce de vie de 38 m² avec cuisine ouverte, lumineuse grâce à ses portes-fenêtres donnant directement accès à la terrasse.

Ce niveau comprend également une chambre de 10 m², une salle de bain ainsi que des toilettes séparées.

À l’étage supérieur, un escalier mène à une spacieuse chambre offrant un cachet certain avec ses poutres apparentes et ses placards de rangement.

Côté confort, la maison est équipée d’un chauffage électrique par radiateurs, de fenêtres en PVC double vitrage, de volets roulants manuels ,d'un portail motorisé et du tout-à-l’égout.

Enfin au RDC, une pièce de rangement de 15 m² avec carrelage, attenante à un garage de 23 m² lui aussi carrelé et avec espace buanderie et une cave , vient compléter harmonieusement l’ensemble.

Les informations sur les risques auxquels ce bien est exposé sont disponibles sur le site Géorisques : www.georisques.gouv.fr. Pour toutes questions complémentaires ,contactez Nathalie Grangier de chez Love immo Tel :04 74 88 65 60 Agent commercial en EI immatriculé au RSAC de Vienne sous le numéro 850 511 304

Caractéristiques de ce bien

  • Surface 80 m²
  • carrez 80 m²
  • terrain 216 m²
  • séjour 38 m²
  • 2 chambre(s)
  • 1 salle(s) de bain
  • cuisine américaine
  • Chauffage individuel : radiateur (electrique)
  • 1 garage(s)
  • 1 niveau(x)
  • terrasse

Diagnostics énergétiques

Consommation énergétique
A B C D E F G
Emission de gaz à effet de serre
A B C D E F G

Montant estimé des dépenses annuelles d'énergie pour un usage standard est compris entre 1 820 € et 2 520 € . Prix moyens des énergies indexés sur les années 2021, 2022 et 2023 (abonnements compris).

Informations financières

Prix de vente 212 000 € Les honoraires d'agence seront intégralement à la charge du vendeur
Taxe foncière annuelle 747 €

Autour du bien

  • Commerces et santé
  • Loisirs
  • Ecoles
  • Transports
  • Pratique

Calcul des mensualités

* Champs obligatoires